Бизнес-центр «Диагональ Хаус»

Мы предлагаем

Аренда и продажа офисных помещений в 12-этажном Бизнес-центре «Диагональ Хаус» по адресу Москва, Бутырская ул., 77 от собственника без комиссии

Звоните: +7 (495) 822-30-70

  • Метро

    Дмитровская, Савёловская

  • Район

    Савёловский

  • Округ

    Северный (САО)

  • Деловая зона

    Между ТТК и МКАД

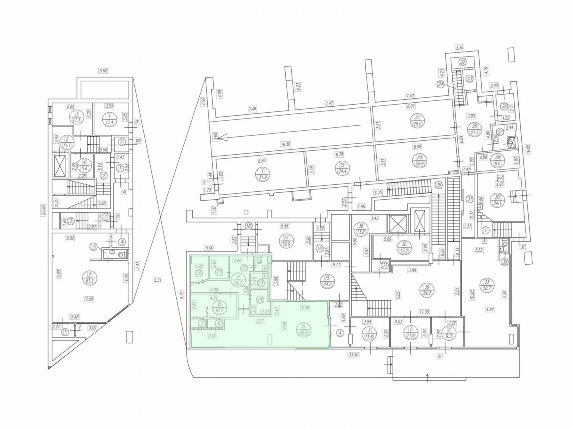
Свободные площади, аренда

    • Площадь

      116 м2

    • Этаж

      1 из 12

    • Ставка в год

      45 000 ₽/м2

      вкл. OPEX, НДС

      Включено: OPEX, НДС

      Оплачивается отдельно: Интернет, Телефония, Уборка, Электроэнергия

    • Стоимость в месяц

      435 000 ₽

    • Свободно

Актуальная информация обо всех вакантных площадях предоставляется по запросу

Характеристики

  • Арендопригодная площадь, кв.м

    11 663.6

  • Общая площадь, кв.м

    16 330.3

  • Статус

    Построен

  • Код налоговой

    14

  • Год постройки

    2007

  • Этажность

    12

  • Тип здания

    Офисное здание

  • Кондиционирование

    Центральное

  • Вентиляция

    Приточно-вытяжная

  • Инфраструктура

    Кафе, Магазины

  • Лифт

    есть

  • Планировка

    Open space, Кабинеты

Об объекте

Предлагаем подобрать и арендовать офис в бизнес-центре класса B+ в Савеловском районе столицы. БЦ имеет удачное расположение вблизи станции метро «Дмитровская», Дмитровского шоссе и Бутырской улицы. До Садового кольца всего 4,7 км, до ТТК — 1,7 км. Оригинальный архитектурный облик зданию придает постепенное сужение площади этажей верхней части БЦ.

В бизнес-центре предлагаются офисы с отделкой площадью 120-580 кв. м и более. Выбрать подходящую площадку могут и частные инвесторы, ИП, и крупные компании. Добраться на нужный этаж можно на любом из 5 лифтов OTIS. Для комфортной атмосферы и оптимального температурно-влажностного режима предусмотрена приточно-вытяжная вентиляция, центральное кондиционирование. Телекоммуникации предоставляются эксклюзивным провайдером. Подземный паркинг вмещает 182 автомобиля. Здание охраняется, ведется видеонаблюдение.

Арендная ставка включает в себя НДС и OPEX. Договор заключается с владельцем офисного помещения, поэтому нет переплат по дополнительным комиссиям и процентам. Организовать просмотр офисов мы можем в удобное для вас время. Получить дополнительную информацию и оставить заявку вы можете по телефону или через форму на сайте.

Адрес

Москва, Бутырская ул., 77